Werkstatthaus ist fertig
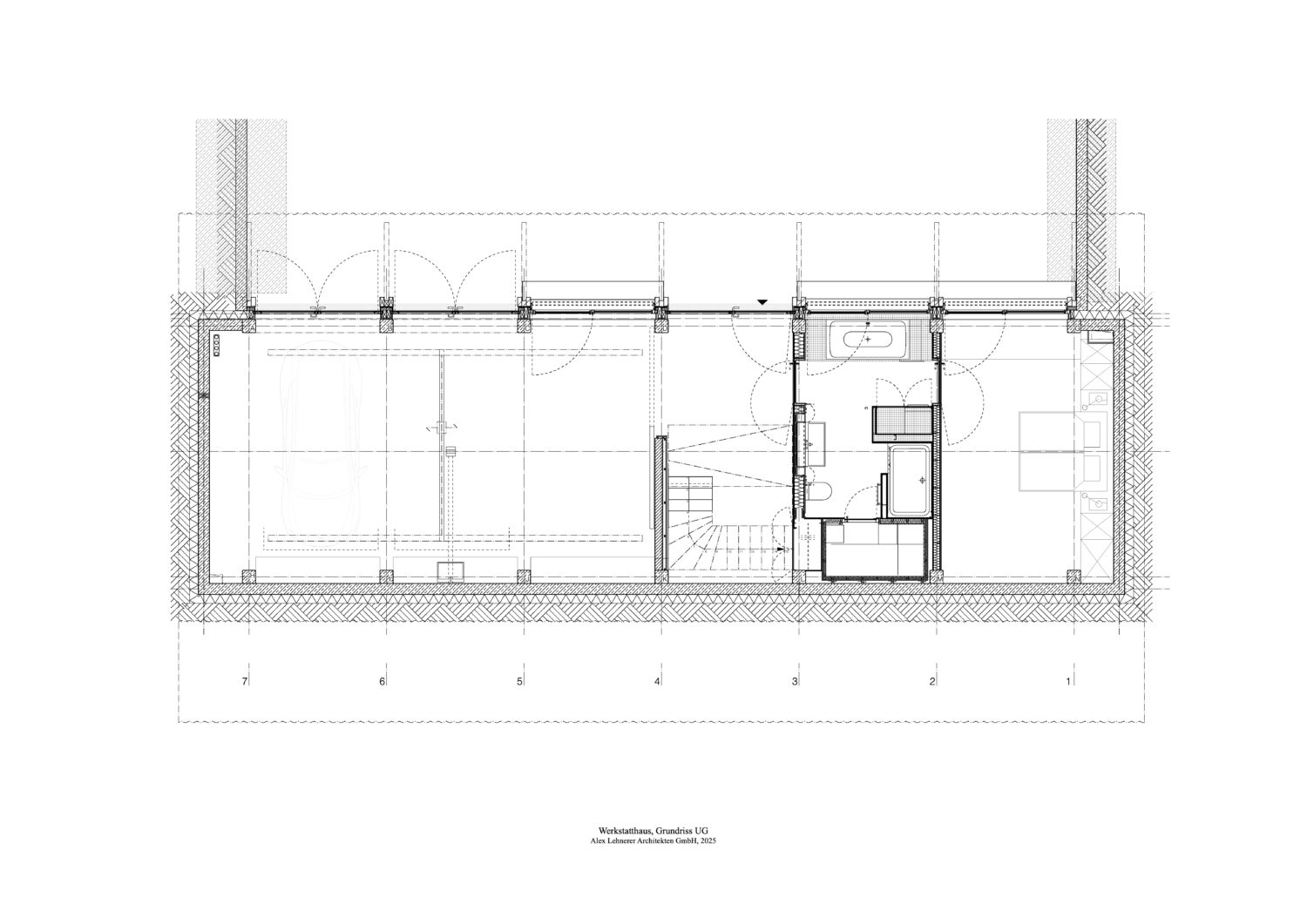
Dieses Haus ist Wohnung, Atelier, Garage und Werkstatt in einem.
Und das Zuhause eines Katers.
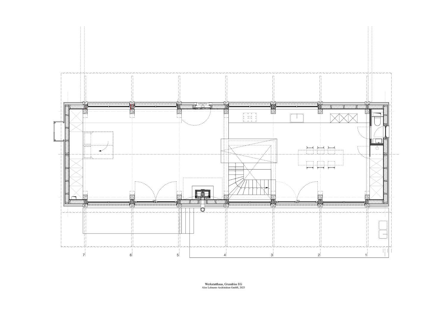
Im Obergeschoss läuft ein Portalkran mit Laufkatze durch den einzigen, großen Raum,
dessen Nebenräume inkl. Bett versteckt in den Giebelwänden liegen.
Die vertikale Verbindung draußen ist der Hang, innen mittig ein großes Loch, wo der Kran
von unten Sachen hochzieht, auch mal ein Motorrad.
Ansonsten schiebt sich ein mobiler Landungssteg darüber in den höher gelegenen Teil.
Konstruktion ist ein Holz-Hybridbau, Stützen aus Beton, Hülle aus Holz.
Zu erwähnen ist noch die zentrale Lüftungsanlage in Form eines 400V–Schweinestall–Lüfters.
Ideal zum Querlüften. Hat sogar dem Energieberater gefallen.
Innerhalb von ein paar Sekunden findet der Luftaustausch statt. Danach ist wieder alles frisch.
Mitarbeit Lukas Feile, Silvio Braun, Alex Lehnerer
Fotos von Tobias Wootton, 2025
Siehe auch Baunetz.
